Bilocale in vendita

Dairago, Via Damiano Chiesa
€ 147.000
2 locali 2 locali
93 Mq 93 Mq
1 bagno 1 bagno

Bilocale in vendita

Dairago, Via Damiano Chiesa

Descrizione annuncio

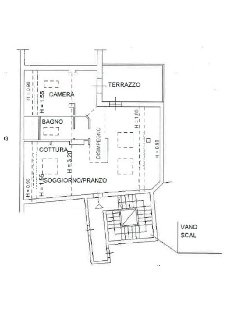
Dairago: a pochi passi dal centro del paese, proponiamo in vendita un accogliente appartamento mansardato di 93 mq, situato al piano superiore di un edificio ben tenuto. L'immobile, costruito nel 1995 e recentemente ristrutturato, offre un ambiente moderno e funzionale. La zona giorno è caratterizzata da un'ampia luminosità, grazie alla presenza di un terrazzo che permette di godere di momenti di relax all'aperto. La camera da letto, spaziosa e confortevole, è ideale per chi cerca tranquillità e privacy. Il bagno, anch'esso rinnovato, completa la disposizione interna. L'appartamento è dotato di aria condizionata e vanta un livello energetico A2, garantendo efficienza e risparmio. Un ulteriore vantaggio è rappresentato dal box doppio, che offre ampio spazio per il parcheggio. La posizione centrale permette di accedere facilmente ai servizi del paese, rendendo questa soluzione abitativa particolarmente comoda e pratica.

Affiliato: Studio Villa Cortese.
Via Pacinotti, 1 - 20020 Villa Cortese (MI)
Tel. 0331.0331-436143 331.5792445
E-mail: mih27

Visita il sito della nostra agenzia

clicca 'Mi piace' sulla nostra Fan page

La tua casa a Portata di click
Vorreste rimanere quotidianamente informati sulla ricerca del vostro immobile?
Iscrivendovi alla nostra Newsletter potrete riceve via mail la soluzione su misura per voi.
Per iscriversi andare sul link seguente:

Inserire la località, specificare la tipologia, prezzo e superficie.

Mostra tutto

Nelle vicinanze

Trasporto pubblico Trasporto pubblico
Trasporto pubblico
2,2 Km
Ricariche auto elettriche Ricariche auto elettriche
Villa Cortese San Martino | EnelX
1,8 Km
Villa Cortese Canova | EnelX
2,1 Km
Villa Cortese d'Azeglio | EnelX
2,2 Km
ENERCOOP Busto Garolfo
2,4 Km
Legnano Via Sardegna | Enel-X
2,9 Km
Scuole Scuole
Scuola Media
290 m
Scuola Materna
310 m
Scuola Elementare
360 m
Scuole
1,4 Km
Istituto di Istruzione Superiore Gregorio Mendel
1,8 Km
Farmacia Farmacia
Farmacia Perino
210 m
Farmacia Pirazzini
1,7 Km
Farmacia
2,4 Km
Farmacia Comunale 4
2,9 Km
Ospedali Ospedali
Pronto soccorso
2,2 Km
Ospedale nuovo di Legnano
2,2 Km
Supermercati Supermercati
Tigros
640 m
Coop
1,6 Km
Coop di Busto Garolfo
2,5 Km
Supermercati
2,6 Km
Penny
2,8 Km
Negozi Negozi
Colombo
310 m
Bar Bar
Bar
1,4 Km
ARCI Villa Cortese
1,8 Km
The Kerry Blue
2,7 Km
Bar Branca
2,9 Km
Ristoranti Ristoranti
Cielo e vino
410 m
Ristoranti
2,9 Km
Mostra tutto

Caratteristiche

Rif.:
61105752
Piano:
2 di 2 (Piano mansarda)
Box:
2
Terrazzi:
1
Camere da letto:
1
Arredamento:
Assente
Mostra tutto
Prezzo Prezzo
€ 147.000
Rata mutuo Rata mutuo
€ 693 / mese
Spese annue Spese annue
€ 1.300
Proponi il tuo prezzoProponi il tuo prezzo

Classe Energetica

A2
A2
A2
A2
A2
A2
A2
A2
A2
EP globale non rinnovabile:
49.15 kW h/m² anno
EP globale rinnovabile:
49.15 kW h/m² anno
EP invernale del fabbricato:
EP estiva del fabbricato:
Anno di costruzione:
1995
Riscaldamento:
Autonomo
Tipo impianto:
A radiatori
Tipo alimentazione:
Metano

Ti interessa visionare l'immobile?

Fissa un appuntamento  Fissa un appuntamento

Richiedi informazioni

Clicca su Leggi per aprire l'informativa
* Questi campi sono obbligatori

Calcola il tuo mutuo

Semplice e senza impegno
Anticipo

( % )
Mutuo

( % )

pochi semplici passi

inserisci i tuoi dati
Questionario completato
Grazie per aver richiesto un appuntamento senza impegno con un nostro Consulente del Credito e Assicurativo.

Hai inserito correttamente tutti i dati necessari e a breve riceverai una e-mail con un link da convalidare per inviare i tuoi dati.
Affiliato
Studio Villa Cortese D.I.
Via Pacinotti, 1 20020 Villa Cortese (MI)

Il nostro staff


  • Daniele Pizzo
    Affiliato

  • Monica Busti
    Coordinatrice

  • Elisa Marino
    Collaboratrice
Via Pacinotti, 1 20020 Villa Cortese (MI)
Zona: Villa Cortese-Dairago-Arconate
Mostra su mappa
Orari: lunedì al venerdì 09.30 alle 12.30-15.00 alle 19.30; sabato chiusura alle 13.00
Affiliato
Studio Villa Cortese D.I.
Via Pacinotti, 1 20020 Villa Cortese (MI)

2026 Tecnocasa Franchising S.p.A. - P. IVA 08365160152 - Via Monte Bianco 60/A 20089 Rozzano (MI). Ogni agenzia ha un proprio titolare ed è autonoma. Privacy policy | Policy utilizzo | Cookie policy